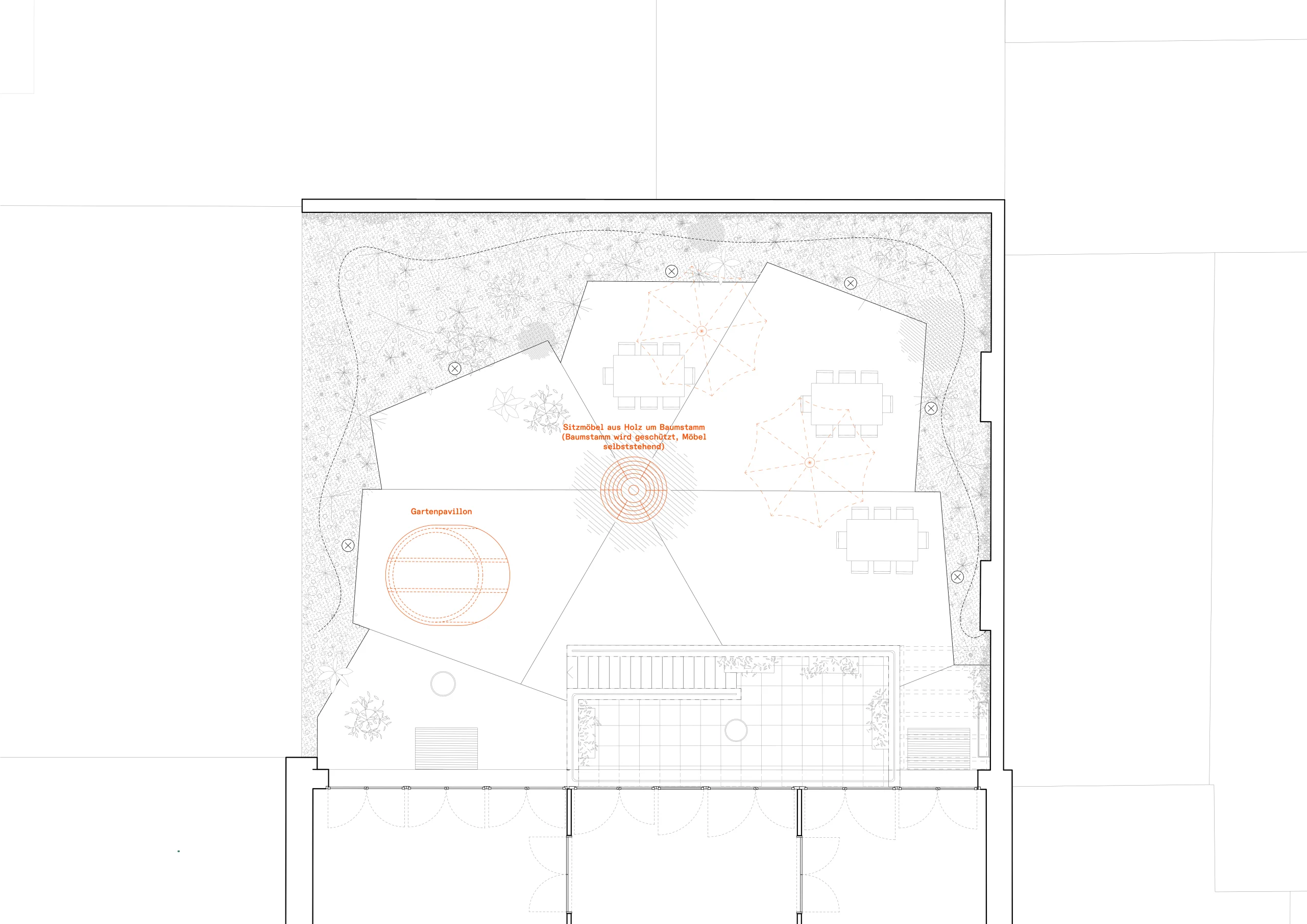
Neugestaltung Garten Bonifacius, Basel
Ein Garten inmitten der Stadt
Das Wohnhaus Bonifacius bietet Wohnraum für Menschen mit körperlichen Beeinträchtigungen, teilweise mit stark eingeschränkter Mobilität. Sein Garten ist für sie ein wichtiger Ort im Alltag, doch die bisherigen Beläge aus Platten, Kies und Holz erwiesen sich als schwer begehbar und unsicher.
Mit der Neugestaltung wird der Aussenraum barrierefrei nutzbar und zugleich aufgewertet: Die bestehenden Qualitäten einer innerstädtischen Hinterhofsituation – geprägt von Dichte, Brandwänden und gewachsenen Strukturen – werden aufgegriffen, Defizite ausgeglichen. Acht polygonale Platten aus Sickerasphalt ersetzen die alten Flächen, greifen in die Randbepflanzung hinein und ergänzen den Garten mit einfachen, robusten Elementen.
Die Grünflächen werden verdichtet und mit einheimischen Gehölzen erweitert, Kletterpflanzen und vertikale Begrünungen beleben die Fassaden. Ein neues Beleuchtungskonzept sorgt für Orientierung und Atmosphäre. Sitzgelegenheiten unter dem grossen Baum, ein kleiner Pavillon sowie die Begrünung von Patio und Brandwand fügen sich in das Gesamtbild ein.
So entsteht ein Garten inmitten der Stadt, zugeschnitten auf die besonderen Bedürfnisse der Bewohnerinnen und Bewohner und überzeugend in seiner aufgewerteten, atmosphärischen Gestaltung.
Neugestaltung Garten Bonifacius, Basel
Ein Garten inmitten der Stadt
Das Wohnhaus Bonifacius bietet Wohnraum für Menschen mit körperlichen Beeinträchtigungen, teilweise mit stark eingeschränkter Mobilität. Sein Garten ist für sie ein wichtiger Ort im Alltag, doch die bisherigen Beläge aus Platten, Kies und Holz erwiesen sich als schwer begehbar und unsicher.
Mit der Neugestaltung wird der Aussenraum barrierefrei nutzbar und zugleich aufgewertet: Die bestehenden Qualitäten einer innerstädtischen Hinterhofsituation – geprägt von Dichte, Brandwänden und gewachsenen Strukturen – werden aufgegriffen, Defizite ausgeglichen. Acht polygonale Platten aus Sickerasphalt ersetzen die alten Flächen, greifen in die Randbepflanzung hinein und ergänzen den Garten mit einfachen, robusten Elementen.
Die Grünflächen werden verdichtet und mit einheimischen Gehölzen erweitert, Kletterpflanzen und vertikale Begrünungen beleben die Fassaden. Ein neues Beleuchtungskonzept sorgt für Orientierung und Atmosphäre. Sitzgelegenheiten unter dem grossen Baum, ein kleiner Pavillon sowie die Begrünung von Patio und Brandwand fügen sich in das Gesamtbild ein.
So entsteht ein Garten inmitten der Stadt, zugeschnitten auf die besonderen Bedürfnisse der Bewohnerinnen und Bewohner und überzeugend in seiner aufgewerteten, atmosphärischen Gestaltung.
WEITERLESEN
Die geplante Aufstockung ersetzt das bestehende Walmdach durch ein neu konstruiertes Satteldach in Holzbauweise. Der Wechsel zur Satteldachform erlaubt eine effizientere Ausnutzung des Dachraums sowie eine klärende städtebauliche Haltung: Die neue Giebelwand formuliert einen bewussten Abschluss der Blockrandbebauung und reagiert auf die grossmassstäbliche Nachbarschaft der Roche-Bauten. Durch die Anhebung des Firstes um rund 70 cm entsteht Raum für zwei gleichwertige 3.5-Zimmer-Wohnungen, die sich typologisch an der bestehenden Zweispännerstruktur orientieren. Auf eingeschnittene Loggien wurde zugunsten grosszügiger, zusammenhängender Grundrissflächen mit hoher Wohnqualität bewusst verzichtet. Stattdessen sorgen vier grosszügige Quergauben mit breiten, beidseitig öffenbaren Fenstern für viel Tageslicht und schaffen im geöffneten Zustand eine direkte Verbindung zwischen Innen- und Aussenraum. Gemeinsam mit der Nachbarbebauung bildet der neue First eine gestalterische Klammer innerhalb der Häuserzeile.
Ein zentrales Element der Neugestaltung ist die Integration einer Indach-Photovoltaikanlage – der ersten ihrer Art im Portfolio der Stiftung Habitat. Im Vergleich zu konventionellen PV-Anlagen stellt diese Lösung hohe gestalterische und planerische Anforderungen, ermöglicht zugleich aber eine harmonisch integrierte, ästhetisch ansprechende Dachfläche. Ihre Umsetzung steht exemplarisch für die ausgeprägte Innovationsfreude der Bauherrschaft.
Die bestehenden acht Wohnungen in den Geschossen EG bis 4. OG erfahren eine haustechnisch umfassende Instandsetzung. Sämtliche Sanitär- und Elektroleitungen werden im Zuge einer vollständigen Strangsanierung ersetzt, alle Einheiten erhalten neue, zeitgemässe Küchen. Zugleich war es von Beginn an ein klar formuliertes Ziel, vorhandene Materialien und Bauteile so weit wie möglich weiterzuverwenden, um die Eingriffe ressourcenschonend und im Sinne der Nachhaltigkeit zu gestalten: Originale Bodenbeläge werden freigelegt, instandgesetzt und wo nötig ergänzt; Wohnungsinnentüren sowie einzelne Oberflächen und Einbauten gezielt aufgearbeitet. Das Gebäude wurde in den vergangenen Jahren nur punktuell und uneinheitlich saniert – das Projekt bietet nun die Gelegenheit, diese Fragmentierungen zu ordnen und das Haus baulich wie gestalterisch wieder zusammenzuführen.
An der Gebäudehülle wird der alte Putz vollständig entfernt, die Fassade ausgebessert und mit einem neuen, Naturdämmputz versehen. Die neuen Wandflächen von Kniestock und Giebelwand werden analog mit eingefärbtem Dämmputz überzogen und fügen sich selbstverständlich in das erneuerte Fassadenbild ein.
Im Aussenraum wird die bestehende Struktur sorgfältig weiterentwickelt und in enger Abstimmung mit der Stadtgärtnerei und der Stadtbildkommission in das Quartiersbild eingefügt. Die ehemalige Garage im Garten wird in ein Velohaus umgenutzt und steht Pate für den innerstädtischen, verkehrstechnischen Wandel unserer Zeit. Ein neuer Aussensitzplatz im Gartenbereich bietet den Bewohnern fortan einen kommunikationsfördernden Begegnungsort.
Mit dem Projekt gelingt eine innerstädtische Nachverdichtung, die den Bestand respektiert und zugleich seine Qualitäten architektonisch, technisch und ökologisch weiterdenkt – zurückhaltend in der Geste, verantwortungsvoll im Umgang mit Ressourcen und im Dialog mit dem Quartier.









